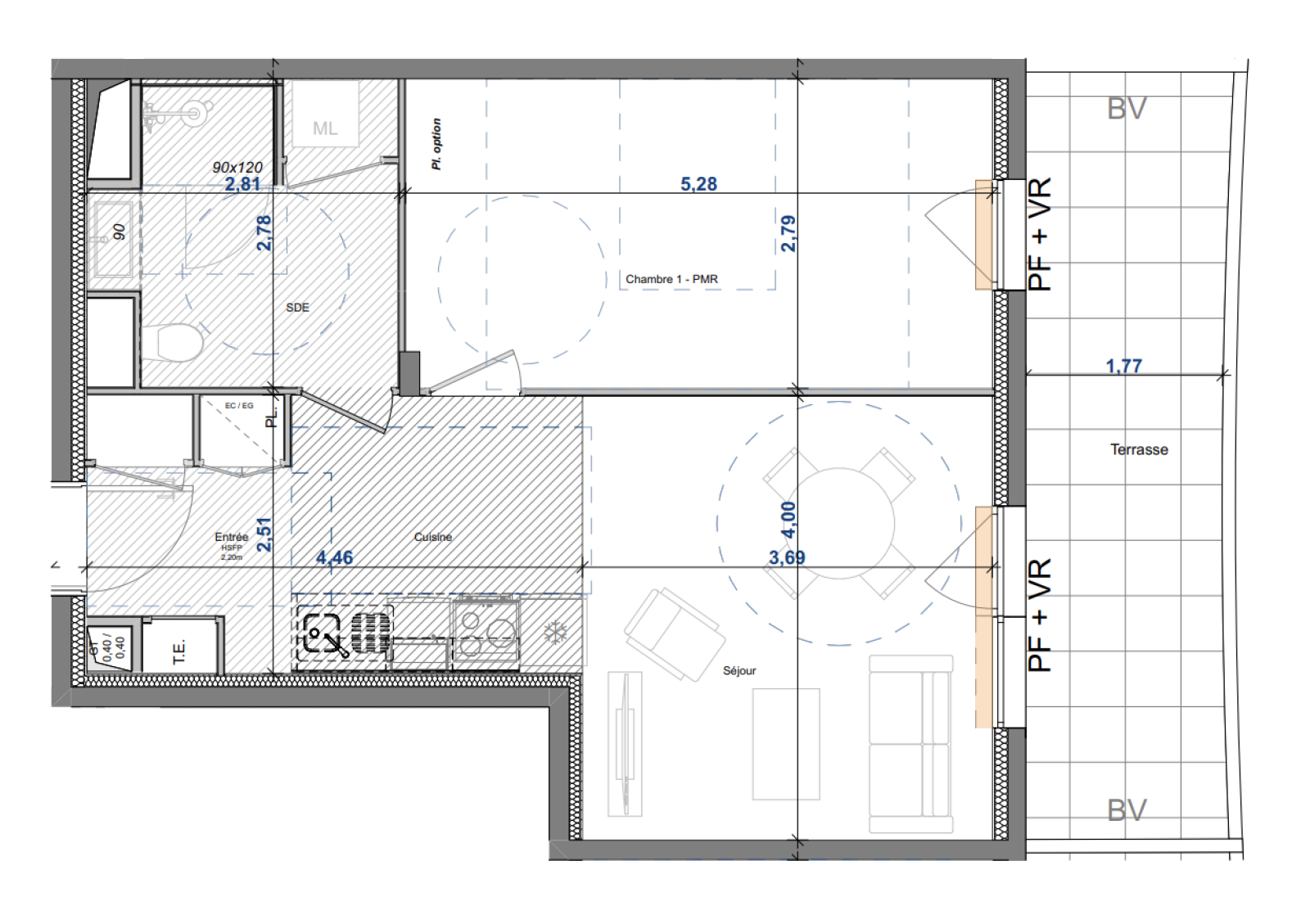
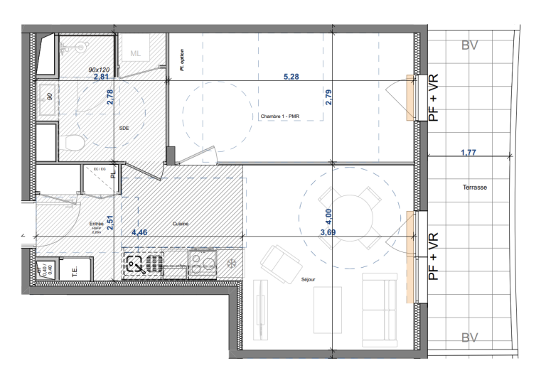
Achat pour placement immobilier avec cet appartement assez vaste pour un T2 accompagné d'une terrasse à vivre agréable et ensoleillée à la rentabilité garantie dans la commune d'Antibes. Dans un nouvel immeuble neuf de standing qui sera terminé en 2024 avec accès pour personnes à mobilité réduite. L'intérieur compte une salle d'eau, un coin salon de 15m², une chambre et un espace cuisine. Sa surface intérieure développe à peu près 40.46m² loi Carrez. Des fenêtres à double vitrage assurent la tranquillité des occupants. L'appartement donne accès à un espace de stockage en sous-sol. Satisfait aux dernières normes imposées par la réglementation en matière de construction label de bâtiment à basse consommation qui garantit des économies d'énergie au quotidien. Pour profiter de l'extérieur, vous disposerez d'une terrasse occupant 12.31m², ce qui porte la superficie utile à 52.77m². Cette propriété est au rez-de-chaussée dans un immeuble de 3 étages ; vous pouvez monter à pied mais le bâtiment dispose d'un ascenseur. Elle vous fait bénéficier de 2 emplacements de parking privatifs pour garer un véhicule. Prix de vente : à partir de 263 000 euros, soit environ 5 650 € par mètre carré.
Idéalement située entre Nice et Cannes, Antibes propose un art de vivre unique au cœur de la Côte d'Azur.
En plus du tourisme balnéaire et de nombreuses commodités, Antibes profite également du dynamisme économique porté par Sophia-Antipolis.
A quelques minutes du Fort Carré, et du port Vauban, découvrez des appartements avec vues mer imprenables pour certains privilégiés au cœur d'un grand parc paysager.
