Trouvez votre appartement à acheter dans un nouvel ensemble immobilier neuf dont la livraison est prévue pour le 3 ème trimestre 2025.
Cet appartement est au 2ème et dernier étage.
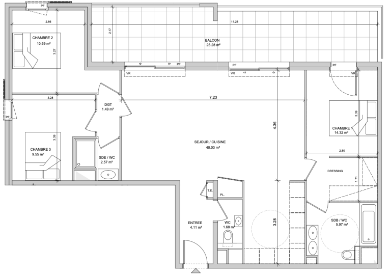
Il se compose d'un grand espace de salon séjour avec cuisine ouverte de 40m2, 3 chambres une salle de bain et une salle d'eau ainsi que 2 WC.
Le bien donne accès à un espace de stockage en sous-sol bénéficie de 2 caves.
Consomme peu d'énergie, ayant reçu le label de bâtiment à basse consommation qui garantit une forte isolation thermique.
Le calme du lieu est garanti grâce aux fenêtres à double vitrage.
À l'extérieur, l'habitation vous offre une terrasse d'une surface de 23.28m², ce qui élève la surface de l'ensemble à 113.6m².
Toute l'équipe du Center bay reste à votre disposition pour tout complément d'information
