Espace propriétaire
fr

Votre recherche

Antibes (06160)

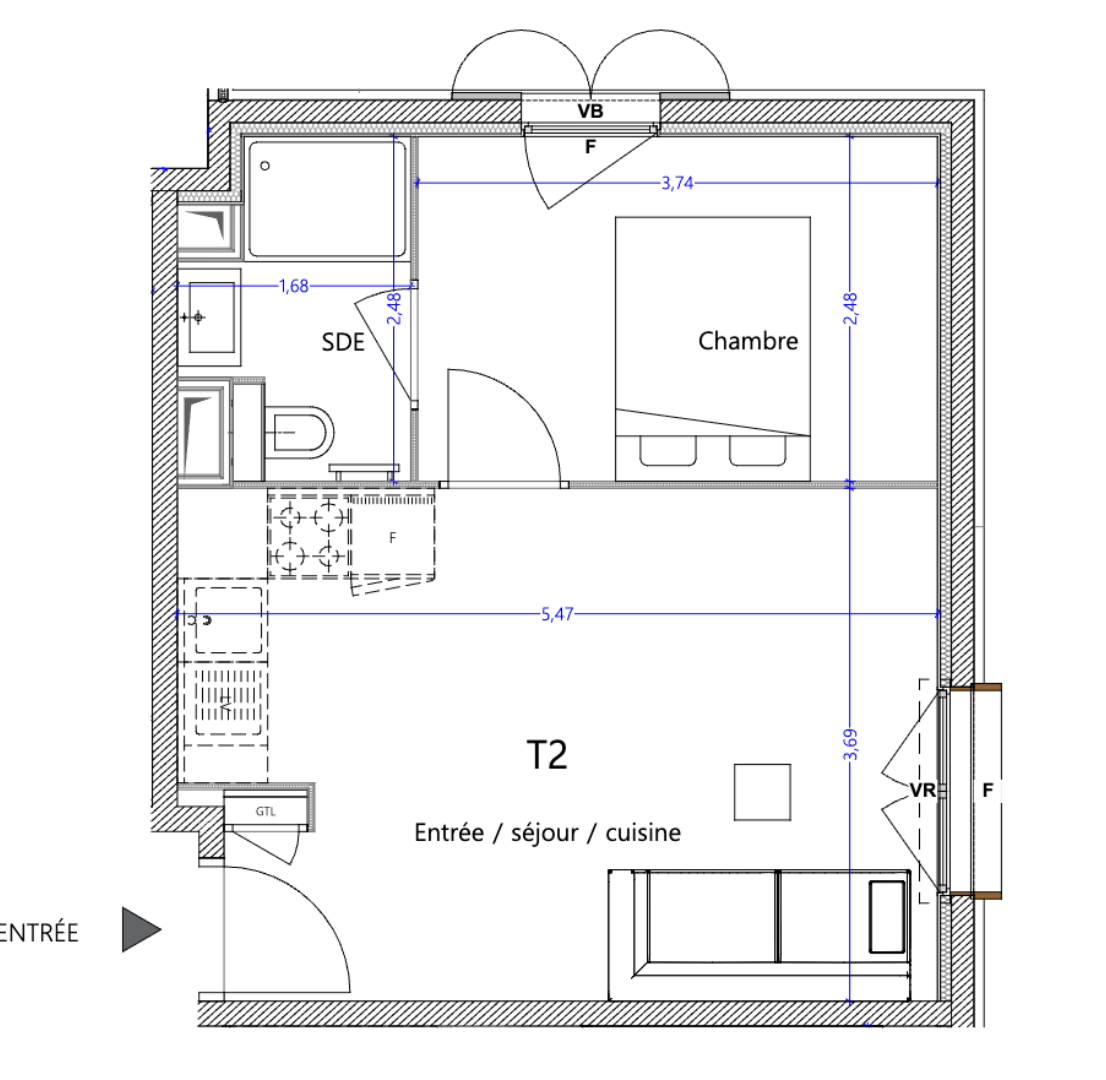
2 pièces - 32,14 m²

NOUVEAUTE - PROGRAMME NEUF - LE CLOS ANTIBES - LIVRAISON 2027 - 2 PIECES REZ DE JARDIN - PARKING - PISCINE

255 000 €
Ref : CB116 - A
A propos de ce bien

À DÉCOUVRIR CE SUPERBE DEUX-PIÈCES, EN REZ-DE-JARDIN AU SEIN DE LA RÉSIDENCE, LE CLOS ANTIBES

NICHÉ DANS UN CADRE ENCHANTEUR À DEUX PAS DES PLAGES ACCESSIBLES À PIED DES TRANSPORTS ET DES PÔLES ÉCONOMIQUES.

CE BIEN SE COMPOSE D'UN SÉJOUR LUMINEUX AVEC CUISINE OUVERTE D'UNE CHAMBRE CONFORTABLE, UNE SALLE D'EAU MODERNE, UNE TERRASSE DE 8 M² PROLONGÉ PAR UN JARDIN PRIVATIF DE PRÈS DE 90 M², EN STATIONNEMENT PRIVATIF EST INCLUS

CONÇU POUR ALLIER MODERNITÉ, CONFORT ET FONCTIONNALITÉS CET APPARTEMENT BAIGNÉE DE LUMIÈRE OFFRE DES PRESTATIONS SOIGNÉE ET PROMET UN CADRE DE VIE AGRÉABLE AU QUOTIDIEN

IDÉAL POUR Y VIVRE OU POUR INVESTIR CE PROGRAMME NEUF CONJUGUER CONVIVIALITÉ ET DOUCEUR DE VIVRE

PLUSIEURS LOTS SONT ENCORE DISPONIBLE, ALLANT DU DEUX PIÈCES OU QUATRE PIÈCES

NE TARDEZ PAS, CES OPPORTUNITÉS SONT RARES ET TRÈS DEMANDÉ


Les informations sur les risques auxquels ce bien est exposé sont disponibles sur le site Géorisques
Descriptif de ce bien
Général
Code postal 06160
Surface loi Carrez (m²) 32,14 m²
Nombre de chambre(s) 1
Nombre de pièces 2
Détails
Nb de salle d'eau 1
Mode de chauffage Electrique
Type de chauffage Autre
Format de chauffage Individuel
Terrasse OUI
Année de construction 2026
Financier
Prix de vente honoraires TTC inclus 255 000 €
Energie
DPE GES
Autour du bien
  • Commerces et santé
  • Loisirs
  • Ecoles
  • Transports
  • Pratique
Contacter pour ce bien
L'agence
Téléphone +33 7 60 01 08 00
Adresse
14 Avenue Guy de Maupassant 06160 Juan les Pins

* Champ obligatoire

Les informations recueillies sur ce formulaire sont enregistrées dans un fichier informatisé par La Boite Immo agissant comme Sous-traitant du traitement pour la gestion de la clientèle/prospects de l'Agence / du Réseau qui reste Responsable du Traitement de vos Données personnelles. La base légale du traitement repose sur l'intérêt légitime de l'Agence / du Réseau. Elles sont conservées jusqu'à demande de suppression et sont destinées à l'Agence / au Réseau. Conformément à la loi « informatique et libertés », vous disposez des droits d’accès, de rectification, d’effacement, d’opposition, de limitation et de portabilité de vos données. Vous pouvez retirer votre consentement à tout moment en contactant directement l’Agence / Le Réseau. Consultez le site https://cnil.fr/fr pour plus d’informations sur vos droits. Si vous estimez, après avoir contacté l'Agence / le Réseau, que vos droits « Informatique et Libertés » ne sont pas respectés, vous pouvez adresser une réclamation à la CNIL. Nous vous informons de l’existence de la liste d'opposition au démarchage téléphonique « Bloctel », sur laquelle vous pouvez vous inscrire ici : https://www.bloctel.gouv.fr Dans le cadre de la protection des Données personnelles, nous vous invitons à ne pas inscrire de Données sensibles dans le champ de saisie libre.
Ce site est protégé par reCAPTCHA, les Politiques de Confidentialité et les Conditions d'Utilisation de Google s'appliquent.

Découvrir nos outils