Espace propriétaire
fr

Votre recherche

Exclusivité
Nouveauté
Antibes (06600)

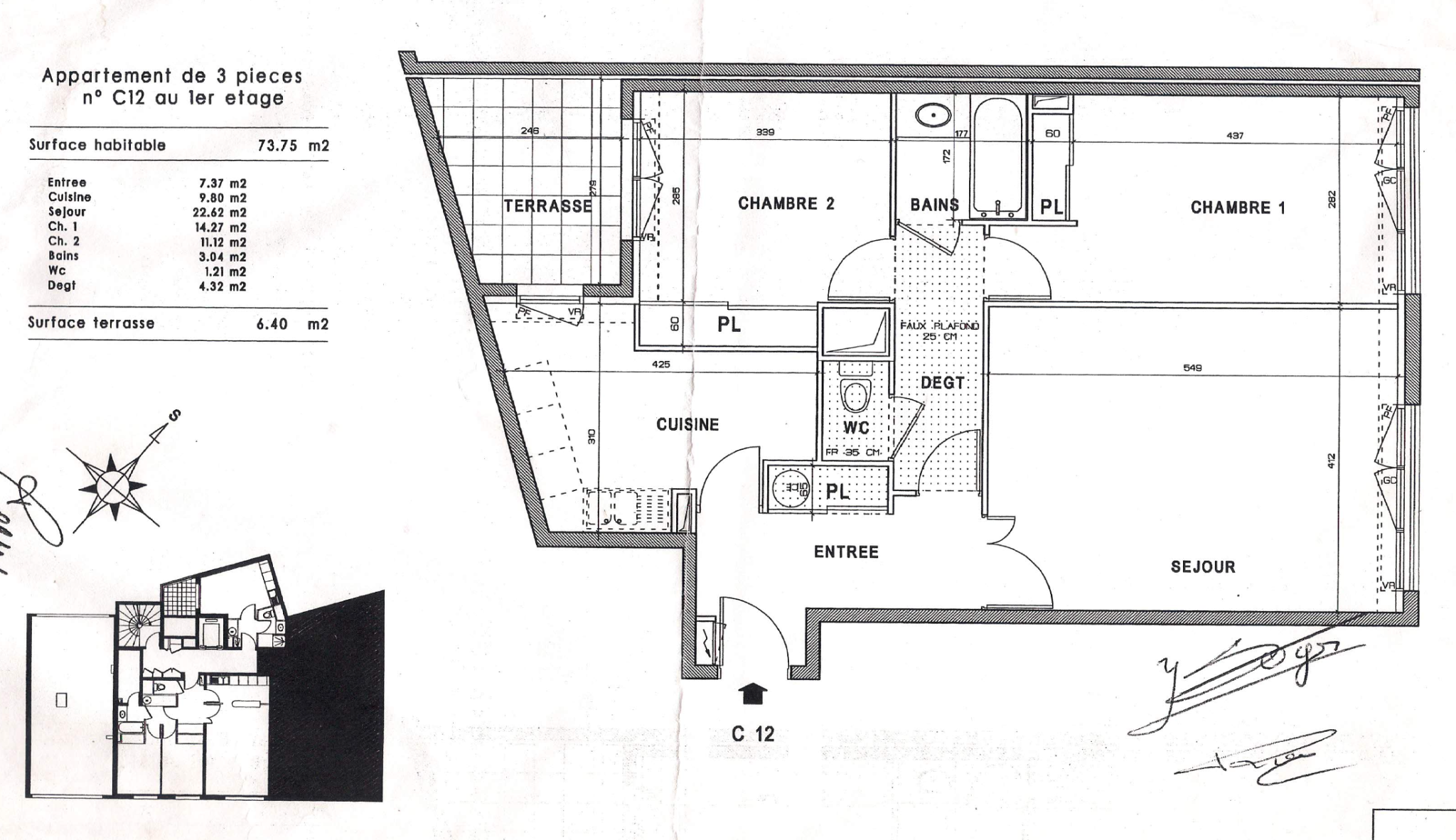
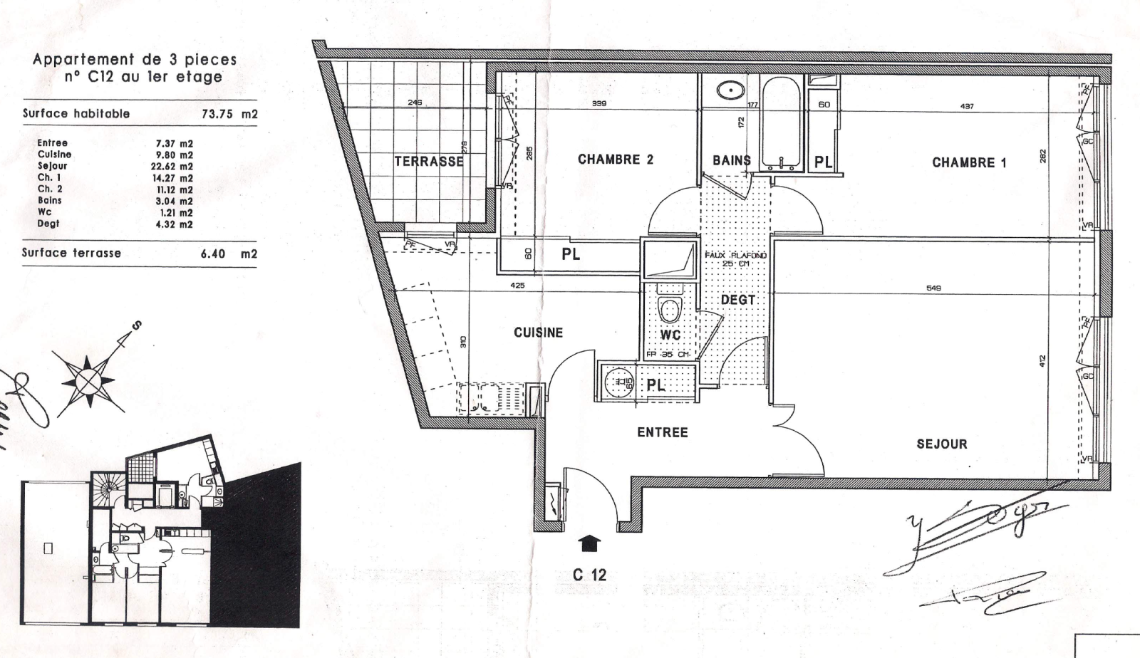
3 pièces - 74 m²

Bien rare à la vente – Appartement 3 pièces avec terrasse – Antibes Centre Place De Gaulle

457 000 €
Ref : CB-132
A propos de ce bien

Emplacement exceptionnel en plein centre-ville d’Antibes, sur la très recherchée Place De Gaulle.
Au 1er étage d’une résidence récente de standing (2010), ce 3 pièces de 73 m², traversant et lumineux, offre un cadre de vie rare au cœur de la ville.

Il se compose d’un beau séjour, d’une cuisine indépendante à aménager selon vos envies, ouvrant sur une agréable terrasse, de deux chambres dont une spacieuse avec dressing, d’une salle de bains et d’un WC indépendant.

L’appartement est en excellent état général : aucun travaux à prévoir hors cuisine, idéal pour une installation rapide.

Un bien idéal pour tout faire à pied : commerces, transports, gare, plages et centre historique à proximité immédiate.
Opportunité rare sur le marché d’Antibes centre.

Notre agence immobilière à Antibes est à votre disposition pour toute information complémentaire et l’organisation d’une visite.


Les informations sur les risques auxquels ce bien est exposé sont disponibles sur le site Géorisques
Descriptif de ce bien
Général
Code postal 06600
Surface loi Carrez (m²) 74 m²
Nombre de chambre(s) 2
Nombre de pièces 3
Etage 1
Ascenseur OUI
Détails
Nb de salle de bains 1
Cuisine Séparée
Mode de chauffage Electrique
Type de chauffage TRAD_TYPE_CHAUFF_AIR_EAU
Format de chauffage Individuel
Interphone OUI
Visiophone OUI
Balcon NON
Terrasse OUI
Cave NON
Exposition Sud-Ouest
Année de construction 2010
Quartier CENTRE VILLE
Financier
Prix de vente honoraires TTC inclus 457 000 €
Prix de vente honoraires TTC exclus 435 238 €
Honoraires TTC à la charge acquéreur 5 %
Charges 170 €
Energie
DPE GES
Autour du bien
  • Commerces et santé
  • Loisirs
  • Ecoles
  • Transports
  • Pratique
Contacter pour ce bien
L'agence
Téléphone +33 7 60 01 08 00
Adresse
14 Avenue Guy de Maupassant 06160 Juan les Pins

* Champ obligatoire

Les informations recueillies sur ce formulaire sont enregistrées dans un fichier informatisé par La Boite Immo agissant comme Sous-traitant du traitement pour la gestion de la clientèle/prospects de l'Agence / du Réseau qui reste Responsable du Traitement de vos Données personnelles. La base légale du traitement repose sur l'intérêt légitime de l'Agence / du Réseau. Elles sont conservées jusqu'à demande de suppression et sont destinées à l'Agence / au Réseau. Conformément à la loi « informatique et libertés », vous disposez des droits d’accès, de rectification, d’effacement, d’opposition, de limitation et de portabilité de vos données. Vous pouvez retirer votre consentement à tout moment en contactant directement l’Agence / Le Réseau. Consultez le site https://cnil.fr/fr pour plus d’informations sur vos droits. Si vous estimez, après avoir contacté l'Agence / le Réseau, que vos droits « Informatique et Libertés » ne sont pas respectés, vous pouvez adresser une réclamation à la CNIL. Nous vous informons de l’existence de la liste d'opposition au démarchage téléphonique « Bloctel », sur laquelle vous pouvez vous inscrire ici : https://www.bloctel.gouv.fr Dans le cadre de la protection des Données personnelles, nous vous invitons à ne pas inscrire de Données sensibles dans le champ de saisie libre.
Ce site est protégé par reCAPTCHA, les Politiques de Confidentialité et les Conditions d'Utilisation de Google s'appliquent.

Découvrir nos outils