Espace propriétaire
fr

Votre recherche

Nouveauté
Antibes (06600)

4 pièces - 168,62 m²

PROGRAMME NEUF - A VENDRE - JUAN LES PINS - FRONT DE MER - 4 PIECES - ROOFTOP - PARKING

2 415 000 €
Ref : CB-PN0003
A propos de ce bien

Bien d'exception

dernier étage en front de mer dans l'une des résidences les plus luxueuse du front de maire de Juan-les-Pins,

découvrez un appartement unique en dernier étage véritable, signature architectural offrant des vols, rares et des extérieurs hors norme,

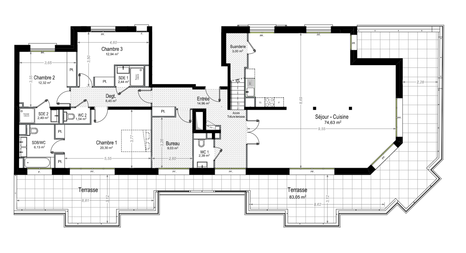
170 m² habitables, sublimé par des prestations haut-de-gamme et une conception contemporaine, pensée pour une clientèle exigeante

4 pièces spacieuse, pièce de vie,beignée de lumière, cuisine ouverte, suites élégantes avec finitions Premium, prestations ultra qualitative,

résidence sécurité de grand standing, un appartement au volume, généreux, parfaitement agencé élégance, confort et modernité

L'EXTÉRIEUR SPECTACULAIRE AU TOTAL, 233 M² DE TERRASSE,

UNE PREMIÈRE TERRASSE DE 83 M² IDÉAL POUR RECEVOIR ET PROFITER PLEINEMENT DU CLIMAT MÉDITERRANÉEN

UN ROOFTOP PRIVÉ DE 150 M² VÉRITABLE, ESPACE DE VIE SUPPLÉMENTAIRE, PARFAIT POUR CRÉER UN SALON DES ÉTÉS, UN JACUZZI CUISINE, EXTÉRIEUR OU UN ESPACE AVEC VUE, IMPRENABLE SUR LA MER, UN ART, DE VIVRE RARE ENTRE CIEL ET MER

deux stationnement privative,

dernier étage, 

résidence neuve  

font de mer, situation exceptionnelle à quelque pas des plages et des meilleures adresses bien rare sur le marché de Juan-les-Pins

Rooftop d'exception, représente une résidence principale prestigieuse ou un pied-à-terre luxe, voire un investissement patrimonial stratégique sur la Côte d'Azur opportunité, extrêmement rare sur demande uniquement informations et présentation privé sur rendez-vous

APPELEZ NOUS VITE 09 78 80 83 69 

 

 

 

 


Les informations sur les risques auxquels ce bien est exposé sont disponibles sur le site Géorisques
Descriptif de ce bien
Général
Code postal 06600
Surface loi Carrez (m²) 168,62 m²
Nombre de chambre(s) 3
Nombre de pièces 4
Etage 5
Détails
Cuisine Américaine
Mode de chauffage Electrique
Type de chauffage Autre
Format de chauffage Individuel
Terrasse OUI
Exposition Est-Ouest
Année de construction 2026
Quartier CENTRE VILLE , FRONT DE MER
Financier
Prix de vente honoraires TTC inclus 2 415 000 €
Energie
DPE GES
Autour du bien
  • Commerces et santé
  • Loisirs
  • Ecoles
  • Transports
  • Pratique
Contacter pour ce bien
L'agence
Téléphone +33 7 60 01 08 00
Adresse
14 Avenue Guy de Maupassant 06160 Juan les Pins

* Champ obligatoire

Les informations recueillies sur ce formulaire sont enregistrées dans un fichier informatisé par La Boite Immo agissant comme Sous-traitant du traitement pour la gestion de la clientèle/prospects de l'Agence / du Réseau qui reste Responsable du Traitement de vos Données personnelles. La base légale du traitement repose sur l'intérêt légitime de l'Agence / du Réseau. Elles sont conservées jusqu'à demande de suppression et sont destinées à l'Agence / au Réseau. Conformément à la loi « informatique et libertés », vous disposez des droits d’accès, de rectification, d’effacement, d’opposition, de limitation et de portabilité de vos données. Vous pouvez retirer votre consentement à tout moment en contactant directement l’Agence / Le Réseau. Consultez le site https://cnil.fr/fr pour plus d’informations sur vos droits. Si vous estimez, après avoir contacté l'Agence / le Réseau, que vos droits « Informatique et Libertés » ne sont pas respectés, vous pouvez adresser une réclamation à la CNIL. Nous vous informons de l’existence de la liste d'opposition au démarchage téléphonique « Bloctel », sur laquelle vous pouvez vous inscrire ici : https://www.bloctel.gouv.fr Dans le cadre de la protection des Données personnelles, nous vous invitons à ne pas inscrire de Données sensibles dans le champ de saisie libre.
Ce site est protégé par reCAPTCHA, les Politiques de Confidentialité et les Conditions d'Utilisation de Google s'appliquent.

Découvrir nos outils